Wannenmacher + Möller

Volksbank am Kesselbrink

Standort:
Bielefeld, Deutschland
Jahr:
2013
Bauherr:
Volksbank Bielefeld
Visualisierungen:
Wannenmacher + Möller ©

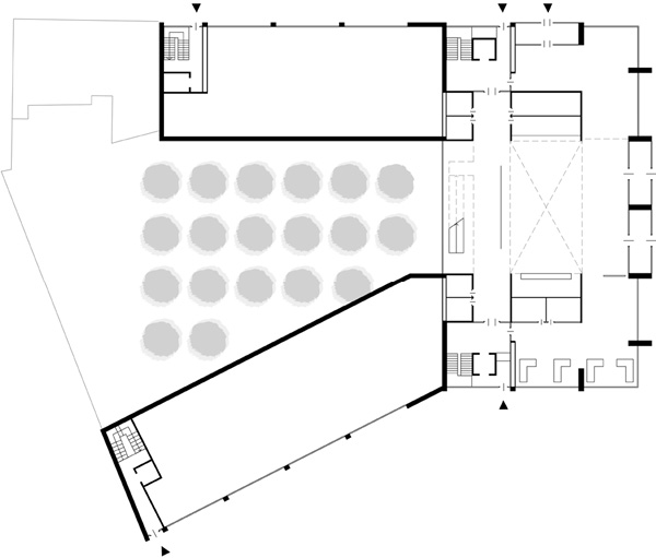
Die Volksbank Bielefeld plante den Ersatz ihrer in der Bielefelder Innenstadt gelegenen Hauptgeschäftsstelle durch einen Neubau. Dabei sollte die Nutzfläche deutlich größer werden, da unter Aufgabe verschiedener Filialen eine Konzentration der Mitarbeiter in der neuen Hauptgeschäftsstelle beabsichtigt war. Zu diesem Zweck sollte der vor dem Bestandsgebäude liegende kleine Platz mit überbaut werden. Somit rückt die Volksbank in die Flucht der Nachbarbebauung und schafft eine klare Raumkante gegenüber dem Kesselbrink, dem größten innerstädtischen Platz Bielefelds.

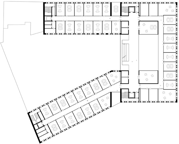
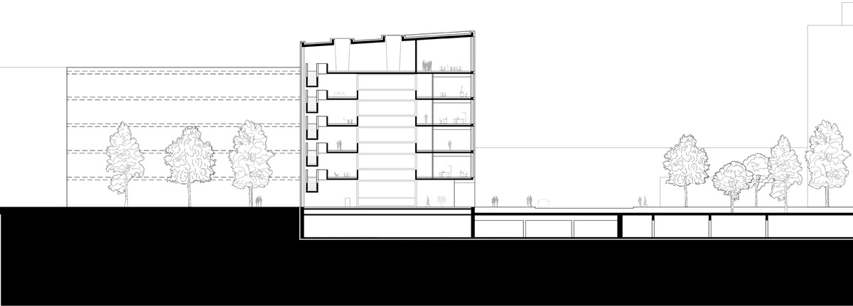
Der Neubau ist in drei Gebäudeabschnitte untergliedert, einem siebengeschossigen Kopfbau gegenüber vom Kesselbrink und zwei Büroriegeln entlang der beiden Seitenstraßen. Die Abschnitte sind durch gläserne Fugen voneinander getrennt. Die dabei entstehende Gliederung des Gebäudevolumens ermöglicht eine verträgliche Einfügung des Neubaus in das städtebauliche Umfeld. Die Büroräume des Kopfbaus sind um ein sechsgeschossiges Atrium gruppiert, in dem sich erdgeschossig die Kassenhalle befindet. Lufträume und Galerien erzeugen hier einen attraktiven Innenraum mit vielfältigen Blickbeziehungen.