Wannenmacher + Möller

Musikzentrum Bochum

Standort:
Bochum, Deutschland
Jahr:
2012
Bauherr:
Stadt Bochum
Auszeichnungen:
Realisierungswettbewerb
Visualisierungen:
Wannenmacher + Möller ©

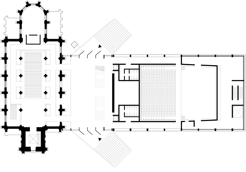
Mit einem schlichten Quader, der durch einen gläsernen Verbindungsbau mit der Marienkirche verbunden ist, reagiert der Entwurf auf die akustischen und ökonomischen Vorgaben für das Musikzentrum. Dabei soll die formale Reduktion in Verbindung mit der völligen Transparenz des Verbindungsbaus die Eigenständigkeit des Kirchenbaus bewahren. Gleichzeitig entstehen mit der Reduzierung der bebauten Fläche auf ein Minimum große Freiflächen, die den neuen Baukörper umspielen und ihn von der Viktoria- wie auch der Humboldtstraße abrücken. Die so geschaffene Distanz soll die Bedeutung des Musikzentrums als wichtiges öffentliches Gebäude innerhalb des Stadtgefüges verdeutlichen. Die resultierenden Außenräume werden gestalterisch aufgewertet und dienen neben ihrer Frequentierung durch Veranstaltungsbesucher auch als Quartiersplatze innerhalb des städtischen Umfelds. Der zur Humboldtstraße gelegene Platz soll zudem als Außenspielfläche genutzt werden.

Das Musikzentrum kann sowohl von der Viktoria- als auch der Humboldtstraße erschlossen werden. Der Besucher wird dabei über großzügige Treppenanlagen mit großen Auftrittsbreiten zum gläsernen Verbindungsbau geführt, in dem das Foyer untergebracht ist. Seine zentrale Lage erlaubt kurze Wege zu den einzelnen Spielstätten und eine einfache Orientierung. Die innere Aufteilung der Kirche berücksichtigt die räumlichen und konstruktiven Gegebenheiten des Gebäudes und versucht, nicht gegen sie zu arbeiten. Daher wurde der Multifunktionssaal nach dem Raum-in-Raum Prinzip im Mittelschiff der Kirche untergebracht, während die Seitenschiffe als Foyerflächen dienen. Diese sind als Stege ausgebildet, welche von Stützen und Seitenwänden abgerückt die Seitenschiffe durchlaufen. Die Säle sind durch doppelte Glaswände von den Foyerflächen abgetrennt. Ihre Transparenz erlaubt es, den Kirchenraum trotz der hineingestellten

Der Entwurf sieht für die Fassade des Neubaus eine dreischalige Konstruktion mit einer massiven Stahlbetonwand vor. Diese ist außen mit einer unregelmäßig gewellten und durch eine Kupfer-Aluminium-Legierung in Gold leuchtenden Metallfassade verkleidet. Der goldene Farbton soll dem Gebäude eine hohe Wertigkeit verleihen und gleichzeitig Assoziation an Blechblasinstrumente wecken und damit seine Nutzung nach außen hin verbildlichen.