Bürogebäude Quakernack Standort:Bielefeld, Deutschland Jahr: 2025 Bauherr: Ludwig Möllmann GmbH & Co.KG Visualisierungen: Wannenmacher + Möller © |

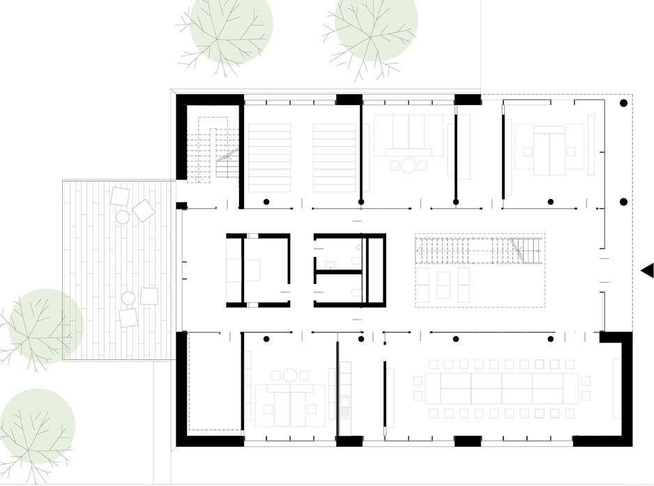
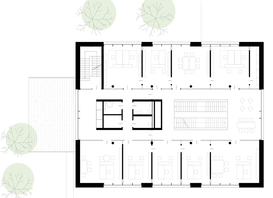
Die Firma Quakernack, ein familiengeführtes Unternehmen der Tiefbaubranche, benötigte ein neues und größeres Bürogebäude als Ersatz für das in den 60er Jahren errichtete Bestandsgebäude. Anders als dieses wurde der neue Baukörper gut sichtbar an die angrenzende Artur-Ladebeck-Straße gerückt, welche eine der Hauptzufahrtsstraßen Bielefelds ist. Das dreigeschossige Gebäude bietet Platz für 25 Arbeitsplätze, 2 unterschiedlich große Besprechungsräume, eine kleine Küche und diverse Nebenräume. Sie gliedern sich um einen zentralen Kern aus Toiletten- und Kopierräumen sowie einen großen Luftraum, in den eine großzügige Freitreppe gestellt ist, welche die Haupterschließung des Gebäudes bildet. Die aufgeweiteten Flurbereiche an den Enden der Mittelzone fördern Austausch und Begegnung und ermöglichen ein soziales Miteinander.
Ein großes Glasoberlicht oberhalb des Luftraums lässt natürliches Licht tief ins Gebäudeinnere eindringen. Die Wände zu den Büros sind komplett verglast. Zwischen diesen sind die Trennwände durch Glasfugen von den Außen- bzw. Flurwänden abgesetzt. So entsteht ein Gebäude von großer Transparenz mit vielfältigen Blickbeziehungen und einer angenehmen Arbeitsatmosphäre. Deckensegel aus Streckmetall unter den Sichtbetondecken absorbieren den Schall und dienen der Heizung und Kühlung der Räume.
Die tragende Konstruktion des Gebäudes ist aus Stahlbeton. Als Fassadenmaterial wurde ein hartgebrannter schmaler Klinker mit einer bündigen Verfugung gewählt. Große, gleichmäßig über die Fassade verteilte Fensteröffnungen verleihen dem Gebäude ein ruhiges, unaufgeregtes Erscheinungsbild, welches die Bodenständigkeit und Solidität des Unternehmens auf subtile Weise nach außen trägt.