DUH Betriebsgbäude Beckum Standort:Beckum, Deutschland Jahr: 2022 Bauherr: DUH GmbH Visualisierungen: Wannenmacher + Möller © |

Ein mittelständisches Unternehmen für Digitalisierung und Engineering beabsichtigte, seine über die Republik verteilten Niederlassungen an einem Standort zu vereinen und dafür ein neues Bürogebäude mit circa 50 Arbeitsplätzen zu bauen. Das Grundstück befindet sich am Rand eines Industriegebiets in Beckum, in unmittelbarer Nähe zu einem Badesee.
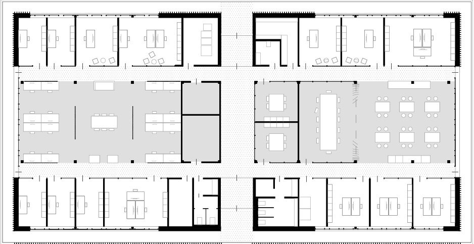
Der Entwurf sieht ein dreigeschossiges, teilunterkellertes Gebäude vor, mit einer Mischung aus Gruppen- und Zellenbüros vor. Über den Eingang des Gebäudes betritt man einen großzügigen Erschließungskern, in dem neben einer offenen Treppe und einem Aufzug auch Toiletten- und Archivräume untergebracht sind. Im Bürobereich sind die Arbeitsplätze in den beiden Obergeschossen verortet. Als Gruppenbüros für Mitarbeiter und Mitarbeiterinnen im 1. Obergeschoss, als um einen offenen Mittelbereich angeordnete Zellenbüros für die Geschäftsleitung im 2. Obergeschoss. Im Erdgeschoss liegen neben einem großen Aufenthaltsraum mit Küchenzeile ein großer Besprechungsraum für Besucher, ein Ausstellungsraum, zwei Studios und ein EDV-Raum.
Das Gebäude ist als Massivbau konzipiert mit zweischaligen Außenwänden, die innen und außen verputzt sind. Große Fensteröffnungen sorgen für viel Tageslicht im Inneren. Die Wände der Zellenbüros sind zum Mittelbereich verglast, sodass letzterer viel Tageslicht erhält. Die beiden oberen Etagen sind über einen Luftraum räumlich miteinander verbunden. In diesem ermöglicht eine Wendeltreppe die gegenseitige Erschließung auf kurzem Wege.