Prüf- und Minsk, Belarus Jahr: 2025 Bauherr: Alutech GmbH Fotos: Pavel Shardyko, VIASET. © |

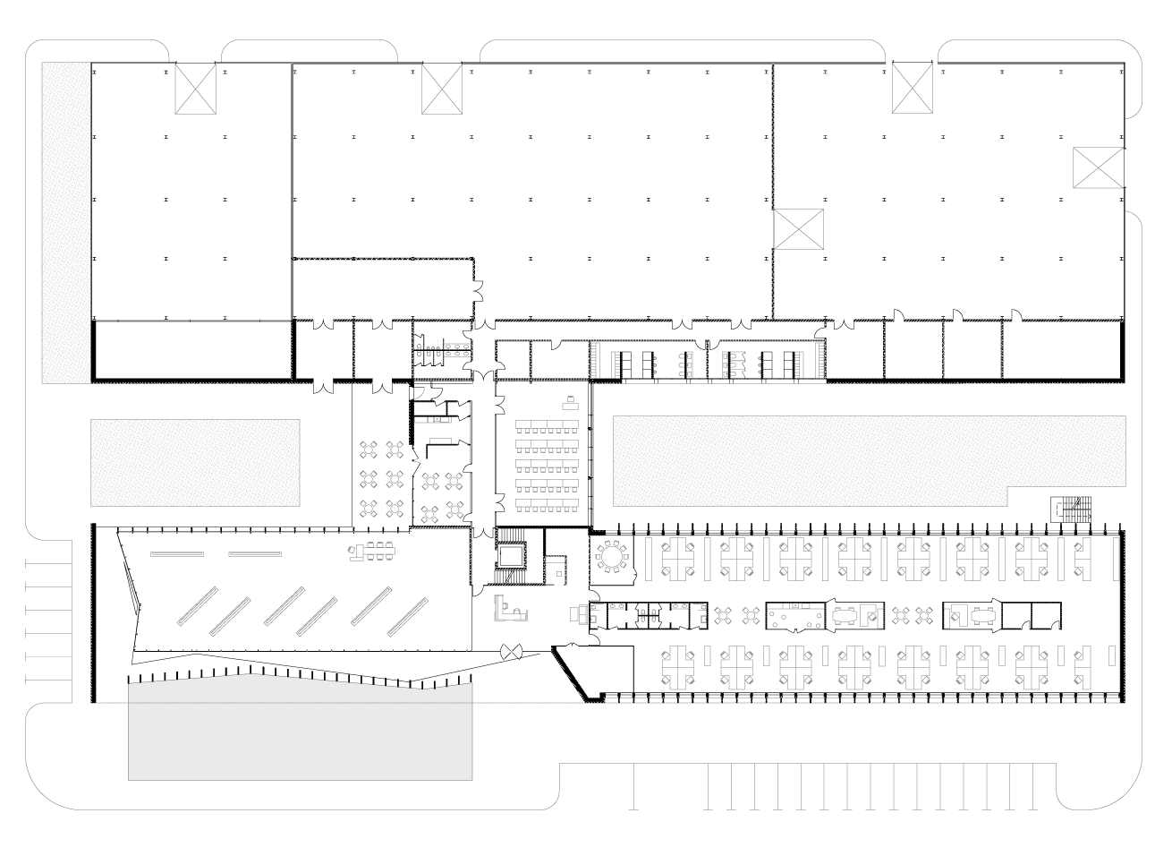
Die Firma ALUTECH ist ein modernes Industrieunternehmen, das Tore, Rollläden sowie Fenster- und Türensysteme aus Aluminium produziert und liefert. Aufgrund eines rasanten Wachstums bestand der Wunsch nach einem neuen Betriebsgebäude mit Produktion, Prüfzentrum, Lager, Büros und einer großen Ausstellung. Der Entwurf schlägt ein langgestrecktes zweigeschossiges Büro und Ausstellungsgebäude vor, welches den Produktions- und Lagerhallen vorgelagert ist. Über einen eingeschossigen Verbindungsbau, in dem sich eine Cafeteria und ein großer Schulungsraum befinden, sind die beiden Baukörper miteinander verknüpft.
Das Büro- und Ausstellungsgebäude wird zentral erschlossen. Man betritt einen Empfangsbereich, an den sich zur linken der zwei Etagen hohe Ausstellungsraum anschließt und zur rechten der Bürobereich. Die Büros sind auf zwei Geschosse verteilt und als offene Bürolandschaft organisiert, bei denen die Mitte von untergeordneten Nutzungen wie Toiletten, Kopier- und Putzmittelräume sowie Teeküchen vereinnahmt wird. Der Ausstellungsraum ist auf allen Seiten komplett verglast. Nach Süden springt seine Außenhaut zurück, sodass die Betonstützen, die das Dach tragen, freigestellt sind. Sie stehen in einem Wasserbecken, das der Glasfassade vorgelagert ist und dem Gebäude eine fast poetische Anmutung gibt.
Die Fassade des Ausstellungs- und Bürogebäudes besteht aus einer mit zementgebundenen Bauplatten verkleideten Stahlkonstruktion. Der Bürotrakt wird dabei durch die in einem Raster von 1,50 Meter stehenden Stützen gegliedert. Die raumhohen und bodentiefen Fenster lassen viel Licht ins Gebäudeinnere und führen zu einer hohen Aufenthaltsqualität an den Arbeitsplätzen. Der überdachte Außenbereich vor der Ausstellung wird oben durch eine schräg laufende gefaltete Unterdecke begrenzt. Im Zusammenspiel mit den aus der Reihe tanzenden Stützen entwickelt das Gebäude hier eine große skulpturale Kraft.