Geschäftshaus Königstraße Standort:Gütersloh, Deutschland Jahr: 2016 Bauherr: Ev. Kirchengemeinde Gütersloh Auszeichnungen: Realisierungswettbewerb, 2. Preis Visualisierungen: Wannenmacher + Möller © |

Der Entwurf schlägt ein viergeschossiges Gebäude vor, welches sich in seiner Höhe an den Gebäuden Königstr. 2 und 4 orientiert. Erd- und Obergeschoss reichen gemäß der im Bebauungsplan getroffenen Festsetzung einer geschlossenen Bauweise an den Seiten und hinten bis an die Grundstücksgrenze. Bei der beispielhaft ausgearbeiteten gastronomischen Nutzung liegen die Gasträume auf beiden Ebenen im vorderen Teil des Gebäudes, mit Blickbezug zum öffentlichen Raum. Die Küchenräume sind im hinteren Bereich des Erdgeschosses untergebracht, eine Etage höher die Toilettenräume. Der erforderliche Aufenthaltsraum und ein kleines Büro sind im Dachgeschoss angeordnet. Die zugehörigen Lagerräume liegen im hinteren Teil des Untergeschosses und
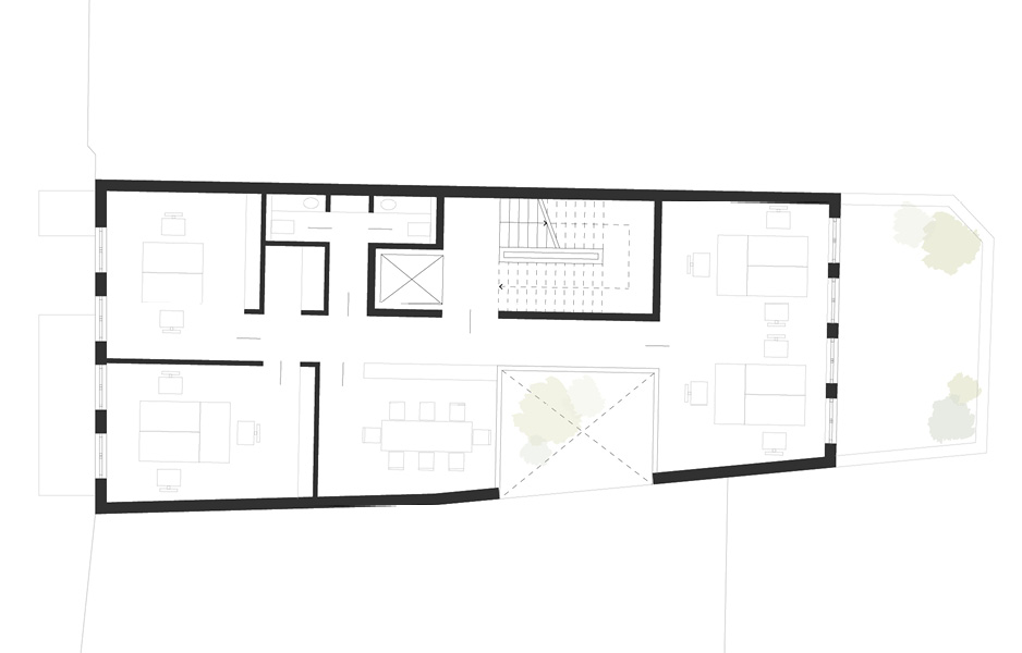
Das 2. und 3. Obergeschoss werden als autarke Einheiten für Arztpraxen oder Büros konzipiert. Wie auch das Dachgeschoss werden sie über ein innenliegendes Treppenhaus erschlossen. Dieses ist so angeordnet, dass in den Etagen möglichst große zusammenhängende Nutzflächen entstehen und die Verkehrsflächen minimiert sind. Die Tageslichtversorgung des Treppenhauses erfolgt über Dachflächenfenster sowie einem großen Fenster über der Haustür. Ein gegenüber dem Treppenhaus angeordneter Lichthof dient in den oberen Etagen der natürlichen Belichtung der Mittelzonen und erlaubt die Anordnung weiterer Büroflächen im Inneren des Gebäudes. Die durchgehende Brandwand des Nachbargebäudes erlaubt die dreiseitige Verglasung der den Lichthof umschließenden Gebäudehülle.
Die Architektur des Gebäudes nimmt Bezug auf die vorherrschende Bebauung im näheren Umfeld des Wettbewerbsgrundstücks. Diese ist geprägt durch Lochfassaden, Putzober-flächen und einem von den Obergeschossen abgesetzten Erdgeschoss. Letzteres ist weitgehend transparent gehalten und erlaubt durch faltbare Glaselemente eine komplette Öffnung des Gastraumes zur vorgelagerten Außengastronomie. Als Fassadenmaterial wird ein monolithisches Ziegelmauerwerk aus 36,5 cm dicken, mit Mineralwolle gefüllten Porotonziegeln vorgeschlagen, welches außen mit einem pigmentierten Putz mit leicht changierenden Farbstrukturen bedeckt wird.