Wohnhaus in Bielefeld Standort:Bielefeld Jahr: 2022 Bauherr: Privat Fotos: Csaba Mester © |

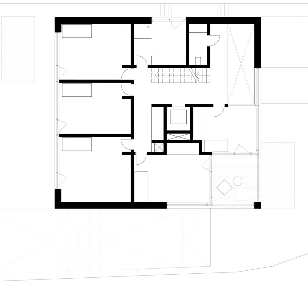
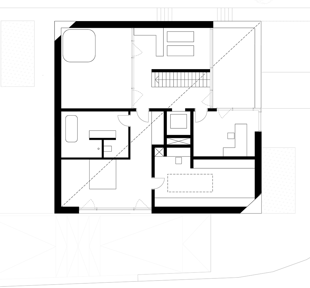
Dieses Wohnhaus für eine fünfköpfige Familie liegt in unmittelbarer Nachbarschaft zweier denkmalgeschützter und für Bielefeld bedeutender Gebäude: Der Musik- und Kunstschule, einem Jugendstilgebäude von 1913, und der Sparrenburg, dem Wahrzeichen Bielefelds aus dem 13. Jahrhundert. Die sensible Lage verlangte nach einer respektvollen Reaktion, die zudem mit dem Amt für Denkmalschutz abgestimmt werden musste. Mit seinem quadratischen Grundriss erstreckt sich das Wohnhaus über 4 Etagen. Auf der untersten Ebene befindet sich eine Tiefgarage, welche unter Ausnutzung der Topographie des stark hängigen Grundstücks im Norden in der Erde verschwindet. Ihr vorgelagert liegen im Süden Keller- und Fitnessräume, sowie eine Einliegerwohnung im Westen. Die Erschließung des Gebäudes erfolgt eine Etage höher von Norden. Auf dieser Ebene befinden sich der Wohn/Essbereich sowie die Küche. Das darüber liegende Geschoss ist den Kinderzimmern vorbehalten, der Elternbereich bildet den Abschluss auf der obersten Etage. Das Wohnhaus ist mit einem Satteldach bedeckt. Dieses ist zum Grundriss um 45 Grad gedreht, wodurch das Gebäude eine skulpturale Qualität entwickelt, die ihm eine große Eigenständigkeit verleiht. Die Fassade ist gekennzeichnet durch ein Wechselspiel von offenen und geschlossenen Flächen. Dabei ist die Setzung der Fenster bestimmt durch den Wunsch, möglichst viele Blickbeziehungen zur Sparrenburg zu ermöglichen. Die Putzfassade orientiert sich in ihrer Farbgebung am Bruchstein der Sparrenburg. Dasselbe gilt für die Dacheindeckung aus Ziegeln.