Wannenmacher + Möller

Wohnhaus in Scharnebeck

Standort:
Scharnebeck, Deutschland
Jahr:
2011
Bauherr:
Privat
Fotos:
Fred Dott ©

Am Rande eines Neubaugebietes in Scharnebeck steht dieses Wohnhaus für eine vierköpfige Familie. Die Lage des Grundstücks bietet höchst unterschiedliche Qualitäten: Einen atemberaubenden, unverbaubaren Ausblick auf Wiesen und Felder im Süden und einen Wald im Westen. Im Norden und Osten hingegen prägen wenig attraktive Wohnhäuser das angrenzende Wohngebiet. Aus diesem Grund wurde entschieden, das Gebäude nach Süden und Westen großflächig zu öffnen, nach Norden und Osten hingegen soweit wie möglich zu schließen und damit das bauliche Umfeld visuell auszublenden. Das lange schmale Wohnhaus ist in seiner Form sehr schlicht gehalten und ähnelt typologisch einer Scheune. Lediglich eine große Gaube, die für die dahinterliegenden Kinderzimmer im Obergeschoss ausreichend Kopfhöhe schafft, durchbricht die Form.

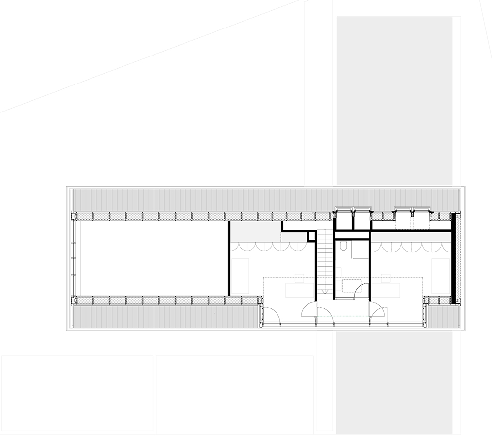
Ein Block aus Abstellraum, Treppe, Elternbad und Gästetoilette unterteilt den Erdgeschossgrundriss in zwei ungleichgroße Hälften: Die größere im Westen beinhaltet den Wohn- und Essbereich mit offener Küche, die kleinere im Osten das Schlafzimmer der Eltern. Das Obergeschoss, in dem zwei Kinder- und ein Badezimmer untergebracht sind, dehnt sich von der östlichen Giebelwand aus bis über den Küchentresen. Der Wohn- und Essbereich erstreckt sich bis unter das Dach. Das Gebäude ist teilunterkellert. Hier sind die Technikräume untergebracht und auch der Zugang zu den Stellplätzen, die sich, die vorhandene Topografie ausnutzend, unter dem Gebäude liegen.

Das Haus ist mit einem unregelmäßig geformten, leicht rötlichen Backstein verkleidet. Der zwischen den Fugen hervorquellende Mörtel verleiht der Fassade eine Ruppigkeit, die einen Kontrast zu dem mit glatten Tonziegeln eingedeckten Dach bildet. Die großen Fensteröffnungen im Süden und Westen versorgen die Innenräume mit viel Tageslicht und ermöglichen aus allen Räumen attraktive Blickbeziehungen in die umgebende Natur.